- 0 Поддержать автора
-
Поделиться
Viktoria
Награды:
Viktoria
|
Имя: Viktoria Группа: VIP пользователь Сообщений: 1785 Регистрация: 20.10.2009 Заходил(а): 18.12.2022 |
Город: Николаев Район: Центральный |
Viktoria
VIP пользователь
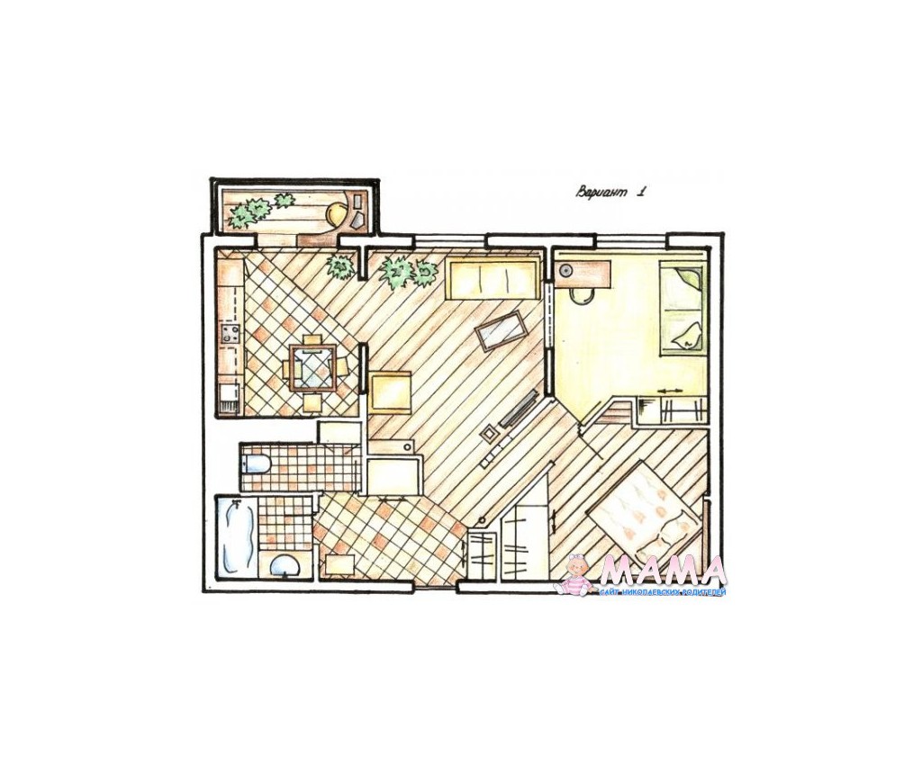
14 December 2010 Видела в журнале такой вариант перепланировки Вашей квартиры (мы тоже в такой сейчас живем, вот и обратила на него внимание)
Один из минусов - балкон из детской, но у нас и сейчас так(
Зато 2 отдельные спальни и терпимый зал. Место для хранения вещей в спальне можно предусмотреть в шкафах над тумбочками. В журнале видимо квартира была шире - поэтому к шкафу в коридоре со стороны спальни тоже примыкал шкаф.
ИРИНКА_25
|
Имя: ИРИНКА_25 Группа: Активный пользователь Сообщений: 371 Регистрация: 02.11.2009 Заходил(а): 04.06.2017 |
Город: Район: Центральный Телефон: 0639460463 |
ИРИНКА_25
Активный пользователь
14 December 2010 Цитата: #5905 Viktoria 14 December 2010, 22:40
Видела в журнале такой вариант перепланировки Вашей квартиры (мы тоже в такой сейчас живем, вот и обратила на него внимание)
Один из минусов - балкон из детской, но у нас и сейчас так(
Зато 2 отдельные спальни и терпимый зал. Место для хранения вещей в спальне можно предусмотреть в шкафах над тумбочками. В журнале видимо квартира была шире - поэтому к шкафу в коридоре со стороны спальни тоже примыкал шкаф.
О похожа на нашу. только у нас балкон в зале
improvizacia
Семья:
improvizacia
|
Имя: ирина Группа: VIP пользователь Сообщений: 1633 Регистрация: 10.02.2011 Заходил(а): 08.02.2019 |
Город: Николаев Район: Ленинский - Старый Водопой Телефон: 0660138523 |
improvizacia
VIP пользователь
15 December 2010 Цитата: #5905 Viktoria 14 December 2010, 22:40
Видела в журнале такой вариант перепланировки Вашей квартиры (мы тоже в такой сейчас живем, вот и обратила на него внимание)
Один из минусов - балкон из детской, но у нас и сейчас так(
Зато 2 отдельные спальни и терпимый зал. Место для хранения вещей в спальне можно предусмотреть в шкафах над тумбочками. В журнале видимо квартира была шире - поэтому к шкафу в коридоре со стороны спальни тоже примыкал шкаф.
а по мне так минус еще и то что в спальни нет окна((
ИРИНКА_25
|
Имя: ИРИНКА_25 Группа: Активный пользователь Сообщений: 371 Регистрация: 02.11.2009 Заходил(а): 04.06.2017 |
Город: Район: Центральный Телефон: 0639460463 |
ИРИНКА_25
Активный пользователь
15 December 2010 Цитата: #5905 improvizacia 15 December 2010, 12:10
а по мне так минус еще и то что в спальни нет окна((
Мы тоже сначала боялись, но у нас между спальней и залом стеклянная межкомнатная перегородка 2,4 м и свет от балкона попадает в спальню. в ней очень светло. да и посещаем мы ее только ночью
krams696
Семья:
krams696
|
Имя: Галина Группа: Silver Сообщений: 11 Регистрация: 07.12.2010 Заходил(а): 22.07.2023 |
Город: Николаев Район: Корабельный - Балабановка Телефон: 0682691004 |
krams696
Silver
15 December 2010
а вот еще один вариант как можно переделать Вашу квартиру и две спальни будут с окнами и в зале будет окно, а также полезной площади будет тоже немало
Lesyk
Семья:
Lesyk
|
Имя: Олеся Группа: Активный пользователь Сообщений: 574 Регистрация: 03.01.2011 Заходил(а): 12.12.2015 |
Город: Николаев Район: Ленинский - ЮТЗ Телефон: 229558 |
Lesyk
Активный пользователь
15 December 2010
А мы немного забрали у коридора и сделали немного больше ванну. Это тоже теперь надо узаконить, да?
improvizacia
Семья:
improvizacia
|
Имя: ирина Группа: VIP пользователь Сообщений: 1633 Регистрация: 10.02.2011 Заходил(а): 08.02.2019 |
Город: Николаев Район: Ленинский - Старый Водопой Телефон: 0660138523 |
improvizacia
VIP пользователь
15 December 2010 Цитата: #5905 krams696 15 December 2010, 16:26а вот еще один вариант как можно переделать Вашу квартиру и две спальни будут с окнами и в зале будет окно, а также полезной площади будет тоже немало
там где Вы предложили спальню сделать, там сейчас кухня!!!! кухню по-любому никуда переносить нельзя(ни пожарники ни газовая служба не разрешит)!!!
krams696
Семья:
krams696
|
Имя: Галина Группа: Silver Сообщений: 11 Регистрация: 07.12.2010 Заходил(а): 22.07.2023 |
Город: Николаев Район: Корабельный - Балабановка Телефон: 0682691004 |
krams696
Silver
15 December 2010
кухню можно переносить, но очень много разрешительных документов, мы такое уже делали(единственное заказчик на кухне сделал не газовую плиту,а электрическую)
krams696
Семья:
krams696
|
Имя: Галина Группа: Silver Сообщений: 11 Регистрация: 07.12.2010 Заходил(а): 22.07.2023 |
Город: Николаев Район: Корабельный - Балабановка Телефон: 0682691004 |
krams696
Silver
15 December 2010 Цитата: #5905 Lesyk 15 December 2010, 17:01А мы немного забрали у коридора и сделали немного больше ванну. Это тоже теперь надо узаконить, да?
Я не знаю как сейчас, а года два назад наши друзья сделали перепланировку квартиры без разрешительных документов(у них была однушка) и когда они подготавливали локументы к продаже техник который приходил перемерять, сказала что если у них осталась площадь по тех.паспорту общая и жилая так же как и до перепланировки можно и небрать разрешительных документов
Viktoria
Награды:
Viktoria
|
Имя: Viktoria Группа: VIP пользователь Сообщений: 1785 Регистрация: 20.10.2009 Заходил(а): 18.12.2022 |
Город: Николаев Район: Центральный |
Viktoria
VIP пользователь
15 December 2010 А мне кажется, что если с документами вопрос можно решить, а вот, что делать с канализацией и кухонной вентиляцией? Только если ставить спец насосы (для канализации)??? а вытяжку на улицу, потому как если тянуть вент трубу, то будет 1)шумно, 2) молоеффективно (будут большие потери мощности вытяжки). Да и с газом прийдется повоевать)
Lesyk
Семья:
Lesyk
|
Имя: Олеся Группа: Активный пользователь Сообщений: 574 Регистрация: 03.01.2011 Заходил(а): 12.12.2015 |
Город: Николаев Район: Ленинский - ЮТЗ Телефон: 229558 |
Lesyk
Активный пользователь
15 December 2010 Цитата: #5905 krams696 15 December 2010, 19:19
Я не знаю как сейчас, а года два назад наши друзья сделали перепланировку квартиры без разрешительных документов(у них была однушка) и когда они подготавливали локументы к продаже техник который приходил перемерять, сказала что если у них осталась площадь по тех.паспорту общая и жилая так же как и до перепланировки можно и небрать разрешительных документов
Было бы хорошо. Спасибо за ответ.
improvizacia
Семья:
improvizacia
|
Имя: ирина Группа: VIP пользователь Сообщений: 1633 Регистрация: 10.02.2011 Заходил(а): 08.02.2019 |
Город: Николаев Район: Ленинский - Старый Водопой Телефон: 0660138523 |
improvizacia
VIP пользователь
16 December 2010
мамочки а кто знает как называется планировка (какие-то буквы и цифры должны быть типа "КС 345") моей квартиры???
improvizacia
Семья:
improvizacia
|
Имя: ирина Группа: VIP пользователь Сообщений: 1633 Регистрация: 10.02.2011 Заходил(а): 08.02.2019 |
Город: Николаев Район: Ленинский - Старый Водопой Телефон: 0660138523 |
improvizacia
VIP пользователь
14 January 2011
че то темка заглохла!!!!
ost-189-1: а для меня это так актуально на данном этапе!!! еще может варианты и советы
ost-189-1: а для меня это так актуально на данном этапе!!! еще может варианты и советы
V!SHENKA
Семья:
V!SHENKA
|
Имя: Оля Группа: VIP пользователь Сообщений: 2775 Регистрация: 11.01.2011 Заходил(а): 12.02.2020 |
Город: Николаев Район: Ленинский - Старый Водопой Телефон: Samsung Galaxy Win GT-I8552 |
V!SHENKA
VIP пользователь
14 January 2011 Цитата: #5905 improvizacia 14 January 2011, 15:54че то темка заглохла!!!!ost-189-1: а для меня это так актуально на данном этапе!!! еще может варианты и советы
![]()
мне тож интересно почитать эту темку)))
Ириска
|
Имя: Ириска Группа: Активный пользователь Сообщений: 991 Регистрация: 22.10.2009 Заходил(а): 07.08.2021 |
Город: Николаев Район: Ленинский |
Ириска
Активный пользователь
14 January 2011
Мы сделали арку между кухней и комнатой, стена не несущая, в БТИ сказали, что если не планируется никаких операций с недвижимостью, то пока можно не узаконивать. Но нашлись добрые соседи - бабушки, которые настучали в ЖЭК, те в исполком. В общем, перепланировку пришлось узаконить. Так что будьте бдительны
improvizacia
Семья:
improvizacia
|
Имя: ирина Группа: VIP пользователь Сообщений: 1633 Регистрация: 10.02.2011 Заходил(а): 08.02.2019 |
Город: Николаев Район: Ленинский - Старый Водопой Телефон: 0660138523 |
improvizacia
VIP пользователь
14 January 2011 Цитата: #5905 Ириска 14 January 2011, 20:09Мы сделали арку между кухней и комнатой, стена не несущая, в БТИ сказали, что если не планируется никаких операций с недвижимостью, то пока можно не узаконивать. Но нашлись добрые соседи - бабушки, которые настучали в ЖЭК, те в исполком. В общем, перепланировку пришлось узаконить. Так что будьте бдительны![]()
Ириска, к Вам приходили представители жека или исполкома???
Ириска
|
Имя: Ириска Группа: Активный пользователь Сообщений: 991 Регистрация: 22.10.2009 Заходил(а): 07.08.2021 |
Город: Николаев Район: Ленинский |
Ириска
Активный пользователь
14 January 2011 Цитата: #5905 improvizacia 14 January 2011, 20:31
Ириска, к Вам приходили представители жека или исполкома???
Пришла мастер из ЖЭКа, составила акт, отнесла в исполком. Оттуда уже депеша пришла. Штраф заплатили 70 грн и узаконили нашу арку за 150 грн в БТИ. А мастера лучше вообще на порог не пускать.
Просматривают эту тему:
Forum






