- 0 Поддержать автора
-
Поделиться
Вот над чем маемся мы. Как объединить зал с "кабинетом" мужа.
Это должно получиться что-то типа "квартира-студия", насколько я понимаю.
Для зоны зала (гостиной) предполагается в будущем функции:
* просмотр фильмов всей семьей,
* прием гостей за большим столом (раскладным, я надеюсь),
* разведение цветочков на подоконнике,
* ну и место для нарядной елки на НГ не забыть предусмотреть.
Для "кабинета" мужу хочется отхватить весь зал, а еще лучше всю квартиру (но я же не дам! мне тоже хоцца свой кабинет
). В общем ему нужон там шкаф для усяких коробок с запчастями, место для паяльника, еще наверно осциллографа.... В общем 2 стола ему нужно, один с компом, второй с паяльником... ага, и чтоб никто за спиной не стоял.
************
Люди, если у кого появятся какие соображения по этой теме, или если попадались картинки с идеями зонирования подобного пространства, прошу все сюда.
Это должно получиться что-то типа "квартира-студия", насколько я понимаю.
Для зоны зала (гостиной) предполагается в будущем функции:
* просмотр фильмов всей семьей,
* прием гостей за большим столом (раскладным, я надеюсь),
* разведение цветочков на подоконнике,
* ну и место для нарядной елки на НГ не забыть предусмотреть.
Для "кабинета" мужу хочется отхватить весь зал, а еще лучше всю квартиру (но я же не дам! мне тоже хоцца свой кабинет
). В общем ему нужон там шкаф для усяких коробок с запчастями, место для паяльника, еще наверно осциллографа.... В общем 2 стола ему нужно, один с компом, второй с паяльником... ага, и чтоб никто за спиной не стоял.************
Люди, если у кого появятся какие соображения по этой теме, или если попадались картинки с идеями зонирования подобного пространства, прошу все сюда.
Pupsik
Семья:
Pupsik
|
Имя: Алёнка Группа: VIP пользователь Сообщений: 1399 Регистрация: 20.10.2009 Заходил(а): 10.01.2018 |
Город: Район: Центральный |
Pupsik
VIP пользователь
01 June 2010
Мы в прошлом году решили подобную проблемку в своем доме - совместили спальню и кабинет. У нас была хорошая просторная лоджия, которую мы соединили с комнатой и превратили в кабинет. Пространство разделили аркой и столом, который начинается в спальне и заканчивается в кабинете. Но больше всего мужу нравится то, что мы подключили 2 монитора к компу. Теперь я могу спокойно сидеть в инете вечером, а муж со стороны спальни на кровате смотрит фильм
Natashenka
Семья:
Награды:
Natashenka
|
Имя: Natashenka Группа: Gold Сообщений: 1001 Регистрация: 20.10.2009 Заходил(а): 02.06.2017 |
Город: Николаев Район: Ленинский Телефон: +380988215450 |
Natashenka
Gold
01 June 2010
Тоже хотела предложить присоединить лоджию (если она есть). Перегородку можно не убирать, а заказать столешницу и вот он стол. По бокам лоджии поставить стеллажи. Один - для мужниных железок, другой - для Ваших цветочков
Детские, семейные и романтические фотосессии http://vk.com/natalia_onyshchenko_photography
Блог http://mymagicdreams.livejournal.com/
Магазин декора и домашнего текстиля http://instagram.com/1000cozythings
Свадебные и подарочные букеты http://vk.com/bluebell_flowers
Vesper
Семья:
Награды:
Vesper
|
Имя: Vesper Группа: VIP пользователь Сообщений: 1361 Регистрация: 20.10.2009 Заходил(а): 04.10.2016 |
Город: Николаев Район: Ленинский Телефон: 0506867307 |
Vesper
VIP пользователь
01 June 2010 Цитата: #3733 Pupsik 01 June 2010, 11:25Мы в прошлом году решили подобную проблемку в своем доме - совместили спальню и кабинет. У нас была хорошая просторная лоджия, которую мы соединили с комнатой и превратили в кабинет. Пространство разделили аркой и столом, который начинается в спальне и заканчивается в кабинете. Но больше всего мужу нравится то, что мы подключили 2 монитора к компу. Теперь я могу спокойно сидеть в инете вечером, а муж со стороны спальни на кровате смотрит фильм
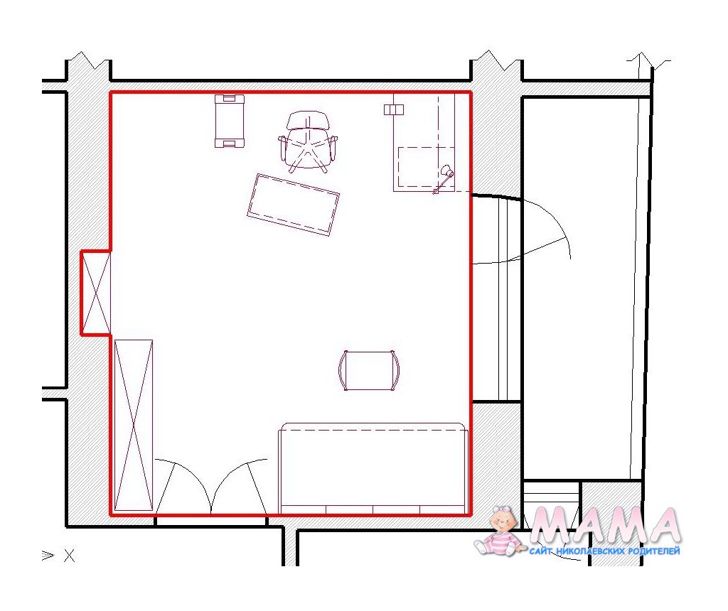
у нас это следующая проблема, я почему-то не стала объединять в одну тему, но конечно давайте лучше объединим.
Значит в спальне Я ХОЧУ кабинет для себя (впрочем, и доця подрастет, короче "женская" зона). Как раз есть лоджия, и в принципе ее можно объединить с комнатой. Но в своем кабинете мне тоже хоцца 2 стола. Комп и швейная машинка. Пока что насчет спальни вырисовываются планы такие: кровать, напротив мой комп, с монитором, развернутым к кровати, и поэтому с кровати можно смотреть фильм. А рабочее швейное место вынести на лоджию. Вроде все просто, дело за малым - лоджию утеплить )))
Труднее мне кажется с "мужской" зоной в гостиной. Там бы тоже не помешало какой-нить доступ для подрастающего наследника организовать, чтоб одновременно и 2-му пользователю (мужу) не мешать.
Vesper
Семья:
Награды:
Vesper
|
Имя: Vesper Группа: VIP пользователь Сообщений: 1361 Регистрация: 20.10.2009 Заходил(а): 04.10.2016 |
Город: Николаев Район: Ленинский Телефон: 0506867307 |
Vesper
VIP пользователь
01 June 2010 Цитата: #3733 Natashenka 01 June 2010, 11:36Тоже хотела предложить присоединить лоджию (если она есть). Перегородку можно не убирать, а заказать столешницу и вот он стол. По бокам лоджии поставить стеллажи. Один - для мужниных железок, другой - для Ваших цветочков![]()
лоджия к залу примыкает, но там другая планировка. Я на днях обмерю все, и выложу план, чтоб было проще ориентироваться.
Но в общем дело такое, что на лоджию эту сильно рассчитывать не стоит. Она узкая, вторая дверь в торце с кухни, т.е. стеллаж только один может получиться. К тому же это курилка, там всегда стояла скамья и откидной столик. Там в дни веселья тусуется курящая часть гостей. А куда банки-склянки потом складывать? Если отдать место в торце лоджии под стеллаж для запчастей, то куда банки? Тоже заморочка... Это уже кухонная проблема, конечно, но все же?
Natashenka
Семья:
Награды:
Natashenka
|
Имя: Natashenka Группа: Gold Сообщений: 1001 Регистрация: 20.10.2009 Заходил(а): 02.06.2017 |
Город: Николаев Район: Ленинский Телефон: +380988215450 |
Natashenka
Gold
01 June 2010
Давайте план квартиры. Так будет легче ориентироваться. А в Архикаде не пробовали сделать планировку и расставить мебель? Очень все замечательно в этой программке - я нашу квартиру в ней планировала, а затем мастеру по ремонту вручила план в готовом виде. Он был счастлив
Детские, семейные и романтические фотосессии http://vk.com/natalia_onyshchenko_photography
Блог http://mymagicdreams.livejournal.com/
Магазин декора и домашнего текстиля http://instagram.com/1000cozythings
Свадебные и подарочные букеты http://vk.com/bluebell_flowers
Pupsik
Семья:
Pupsik
|
Имя: Алёнка Группа: VIP пользователь Сообщений: 1399 Регистрация: 20.10.2009 Заходил(а): 10.01.2018 |
Город: Район: Центральный |
Pupsik
VIP пользователь
01 June 2010
можно еще в программке PRO100 попробовать нарисовать. она тоже очень простая и в 3д крутит, с ней Мебельные технологии работают.
В наших "просторных" квартирах сильно не разгуляешься. Давайте план квартиры
В наших "просторных" квартирах сильно не разгуляешься. Давайте план квартиры
Vesper
Семья:
Награды:
Vesper
|
Имя: Vesper Группа: VIP пользователь Сообщений: 1361 Регистрация: 20.10.2009 Заходил(а): 04.10.2016 |
Город: Николаев Район: Ленинский Телефон: 0506867307 |
Vesper
VIP пользователь
02 June 2010
вот что у нас в комнате сейчас:
при входе: кушетка, "кофейный" столик, шкаф книжный, в нише полки, ну и то что сейчас называется "мастерская" (стол рабочий, стол компьютерный, усилок) - стоит у стены напротив входа.
жуть
правда там еще таксопарк малышовый (коляска, ходунки, велосипед) хранится, но это ведь не навсегда (надеюсь)
при входе: кушетка, "кофейный" столик, шкаф книжный, в нише полки, ну и то что сейчас называется "мастерская" (стол рабочий, стол компьютерный, усилок) - стоит у стены напротив входа.
жуть

правда там еще таксопарк малышовый (коляска, ходунки, велосипед) хранится, но это ведь не навсегда (надеюсь)
pechenushka
Семья:
pechenushka
|
Имя: pechenushka Группа: VIP пользователь Сообщений: 1763 Регистрация: 20.10.2009 Заходил(а): 22.05.2015 |
Город: Николаев Район: Ленинский - ЮТЗ |
pechenushka
VIP пользователь
02 June 2010
а где это у вас такая планирова и сколько общая площадь квартиры?
Юлечка
Семья:
Юлечка
|
Имя: Юлечка Группа: VIP пользователь Сообщений: 2570 Регистрация: 21.10.2009 Заходил(а): 28.06.2015 |
Город: Харьков Район: Заводской - Лески |
Юлечка
VIP пользователь
03 June 2010
Vesper
А зачем вам этот вход со стороны кухни? Если вы его заложите, площадь 4,40м для кабинета не шикарно, но очень хорошо (моё субъективное мнение
)
Рабочий стол 1,10 м с полками, навесами для всяких нужностей и второй стол(для компьютера) напротив, там, где у вас сейчас вход на кухню и баночки можно в какой-то шкаф-нишу поставить. Может к мужу в кабинет в виде ненавязчивого шкафчика
или ещё где-то в доме местечко подискать. А может у вас кладовочка на этаже есть?
А зачем вам этот вход со стороны кухни? Если вы его заложите, площадь 4,40м для кабинета не шикарно, но очень хорошо (моё субъективное мнение
)Рабочий стол 1,10 м с полками, навесами для всяких нужностей и второй стол(для компьютера) напротив, там, где у вас сейчас вход на кухню и баночки можно в какой-то шкаф-нишу поставить. Может к мужу в кабинет в виде ненавязчивого шкафчика
или ещё где-то в доме местечко подискать. А может у вас кладовочка на этаже есть?
Vesper
Семья:
Награды:
Vesper
|
Имя: Vesper Группа: VIP пользователь Сообщений: 1361 Регистрация: 20.10.2009 Заходил(а): 04.10.2016 |
Город: Николаев Район: Ленинский Телефон: 0506867307 |
Vesper
VIP пользователь
03 June 2010 Цитата: #3733 pechenushka 02 June 2010, 23:49а где это у вас такая планирова и сколько общая площадь квартиры?
что-то порядка 65 (жилая 40). Это 13-я линия, район баштанского рыночка, 5-тиэтажка, и, конечно, повезло, этаж пятый (крыша, соответственно, течет). Но зато площади - конем гуляй ))) Тока мозги туго соображают, как именно гулять. Помогайте, плизззз!
Юлечка
Семья:
Юлечка
|
Имя: Юлечка Группа: VIP пользователь Сообщений: 2570 Регистрация: 21.10.2009 Заходил(а): 28.06.2015 |
Город: Харьков Район: Заводской - Лески |
Юлечка
VIP пользователь
03 June 2010 Цитата: #3733 Vesper 03 June 2010, 00:02
что-то порядка 65 (жилая 40). Это 13-я линия, район баштанского рыночка, 5-тиэтажка, и, конечно, повезло, этаж пятый (крыша, соответственно, течет). Но зато площади - конем гуляй ))) Тока мозги туго соображают, как именно гулять. Помогайте, плизззз!![]()
И техэтаж есть?
Если да - я за вас совсем рада
Vesper
Семья:
Награды:
Vesper
|
Имя: Vesper Группа: VIP пользователь Сообщений: 1361 Регистрация: 20.10.2009 Заходил(а): 04.10.2016 |
Город: Николаев Район: Ленинский Телефон: 0506867307 |
Vesper
VIP пользователь
03 June 2010 Цитата: #3733 Юлечка 03 June 2010, 00:00Vesper
А зачем вам этот вход со стороны кухни? Если вы его заложите, площадь 4,40м для кабинета не шикарно, но очень хорошо (моё субъективное мнение)
Рабочий стол 1,10 м с полками, навесами для всяких нужностей и второй стол(для компьютера) напротив, там, где у вас сейчас вход на кухню и баночки можно в какой-то шкаф-нишу поставить. Может к мужу в кабинет в виде ненавязчивого шкафчикаили ещё где-то в доме местечко подискать. А может у вас кладовочка на этаже есть?
![]()
наоборот, Юлечка, мы на этот вход со стороны кухни молимся )))
1) муж курит. Самое простое с чашкой чая утром на балкон выйти из кухни.
2) про гостей я писала. Когда есть 2 выхода из узкой курилки - никто друг по другу не топчется, класс просто.
3) и последнее, мне белье таскать через кухню гораздо ближе, чем через большую комнату (попутно помешивая суп).
на этаже кладовочек нету
мужу нужны 2 стола одновременно, поэтому они у него и стоят углом. То, что он там паяет, зачастую подключается к компу, требует проверки-настройки и т.д. и т.п.
Vesper
Семья:
Награды:
Vesper
|
Имя: Vesper Группа: VIP пользователь Сообщений: 1361 Регистрация: 20.10.2009 Заходил(а): 04.10.2016 |
Город: Николаев Район: Ленинский Телефон: 0506867307 |
Vesper
VIP пользователь
03 June 2010 Цитата: #3733 Юлечка 03 June 2010, 00:04
И техэтаж есть?![]()
Если да - я за вас совсем рада![]()
техэтаж - это что?
Zemy
Семья:
Награды:
Zemy
|
Имя: Зяма Группа: VIP пользователь Сообщений: 12755 Регистрация: 03.01.2011 Заходил(а): 12.04.2017 |
Город: Киев Район: Ленинский - ЮТЗ |
Zemy
VIP пользователь
03 June 2010
В первую очередь у тебя - шикарная квартира... отличная трешка
Мое рац предложение на скорую руку:
В результате такого - мужа не видно когда входишь в гостиную, можно как нибудь обыграть зонирование, ты получаешь огромное место для дивана и гостей...
Если грамотно на заказ спланировать столы и стеллажи для мужа - все будет очень даже... компактно и красиво...
А свою гостиную зону сделаешь как тебе хочется - с диваном, столом, книжными шкафами, и что там еще нужно...
Мое рац предложение на скорую руку:
В результате такого - мужа не видно когда входишь в гостиную, можно как нибудь обыграть зонирование, ты получаешь огромное место для дивана и гостей...
Если грамотно на заказ спланировать столы и стеллажи для мужа - все будет очень даже... компактно и красиво...
А свою гостиную зону сделаешь как тебе хочется - с диваном, столом, книжными шкафами, и что там еще нужно...
Здесь был Зяма...
А теперь ищите меня здесь https://zemychat.wordpress.com/
pechenushka
Семья:
pechenushka
|
Имя: pechenushka Группа: VIP пользователь Сообщений: 1763 Регистрация: 20.10.2009 Заходил(а): 22.05.2015 |
Город: Николаев Район: Ленинский - ЮТЗ |
pechenushka
VIP пользователь
03 June 2010
а как насчет присоединить балкон к залу , вернее объеденить? планируете или нет?
Zemy
Семья:
Награды:
Zemy
|
Имя: Зяма Группа: VIP пользователь Сообщений: 12755 Регистрация: 03.01.2011 Заходил(а): 12.04.2017 |
Город: Киев Район: Ленинский - ЮТЗ |
Zemy
VIP пользователь
03 June 2010 Цитата: #3733 Юлечка 03 June 2010, 00:32Zemy, зато только столы и видно, когда на диванчике сидишь.
Надо ширму-перегородку какую-то придумать![]()
ГЫ - так и раньше было видно
а теперь еще и телек можно смотреть
...
Здесь был Зяма...
А теперь ищите меня здесь https://zemychat.wordpress.com/
Просматривают эту тему:
Forum




